Bedroom Refresh
This bedroom just needed a little TLC. The main furniture stayed – but new carpet, paint, window treatments, and decor is just what the space needed!
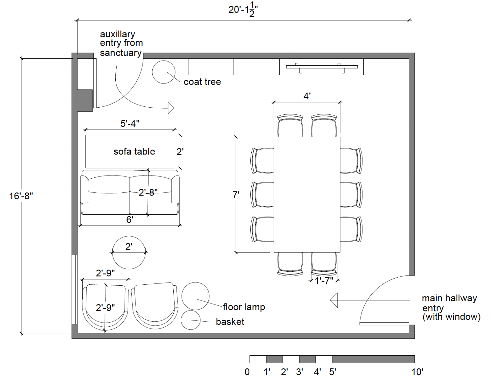
Church Gathering Room
Reimagined as a flexible gathering space, this room now supports both structured meetings and casual connection. A cozy seating area invites conversation, while the layout easily transitions back to a functional meeting space when needed.
Living Room Makeover
Restaurant Concept Design
Adaptive Reuse Design – Art Studio
